Dal
1
Luglio
2010
è
obbligatorio
in
sede
di
compravendita
di
un
immobile
la
conformità
dei
dati
presenti
al
catasto
(corrispondenza planimetria catastale con lo stato di fatto).
Per
questo
motivo
spesso
veniamo
incaricati
ad
effettuare
la
variazione
catastale
o
modificare
la
planimetria
del
catasto
prima
di una compravendita immobiliare.
IN COSA CONSISTE UNA VARIAZIONE
CATASTALE
?
Le
Variazioni
Catastali
sono
documenti
ufficiali
col
quale
si
comunica
all’Agenzia
del
Territorio
l’intervenuto
o
cambiamento
avvenuto dello stato di un immobile.
I
cambiamenti
più
frequenti
sono
richiesti
a
seguito
di
modifica
degli
spazi
interni,
di
un
eventuale
ampliamento,
per
l’inserimento
della
planimetria
mancante
in
catasto,
o
semplicemente
per
cambiare
i
dati
errati
(TIPO
INDIRIZZO,
CODICE
FISCALE) che appaiono nella visura.
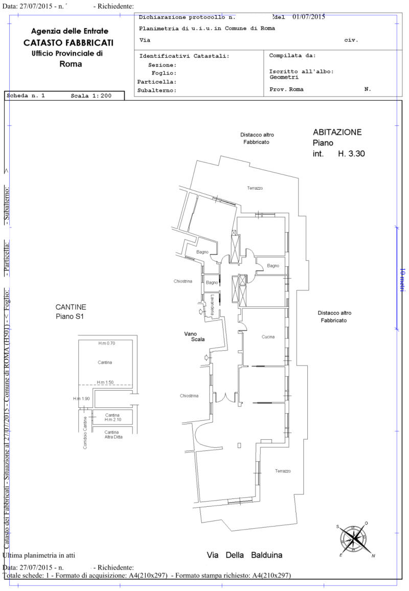
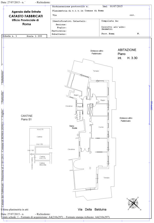
MODIFICA PLANIMETRIA VARIAZIONE CATASTALE prima
QUANDO SERVONO LE VARIAZIONI
CATASTALI
?
Nuova
costruzione
dopo
aver
realizzato
il
progetto
presentato
al
comune,
prima
della
fine
dei
lavori
va
presentata
la
planimetria
catastale presso l’ufficio competente (UFFICIO DELLE ENTRATE)
Ampliamento
e
quindi
modifica
dell’unità
immobiliare
già
presente in catasto;
Frazionamento
o
Fusione
e
quindi
modifica
dell’unità
immobiliare già presente in catasto
Attribuzione
o
Scorporo
di
Pertinenze
o
di
aree
esclusive:
fusione
di una cantina ad un alloggio;
Cambio
di
destinazione
d’uso
dei
locali:
ogni
qualvolta
un
Edificio
o
una
porzione
di
esso
viene
destinato
ad
altro
uso,
anche
senza
modifiche dei locali o degli impianti, come sotto elencato
•
da abitazione ad ufficio, o viceversa
•
da ufficio a negozio, o viceversa
•
da box garage a magazzino, o viceversa
•
da deposito a negozio, o viceversa
•
ecc.
Modifica
degli
spazi
interni
per
lavori
di
ristrutturazione
che
prevedono
lo
spostamento,
creazione
o
l’eliminazione
di
muri
divisori interni alla casa.
Esatta
rappresentazione
grafica
dell’unità
immobiliare:
qualora
l’attuale
planimetria
vigente
in
catasto
sia
stata
erroneamente
accatastata
non
conforme
al
progetto
approvato
e
quindi
deve
essere
ripresentata
correttamente
facendo
riferimento
al
Protocollo del Progetto.
In
tutti
gli
altri
casi
è
necessario
la
presentazione
di
(CILA
–
SCIA
–
DIA ) in Sanatoria.
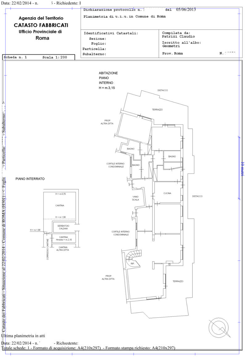
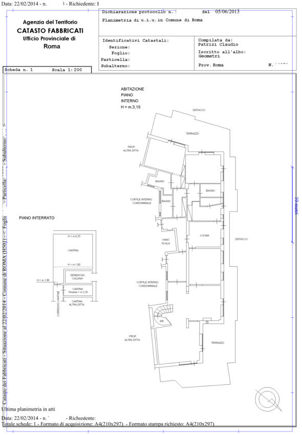
MODIFICA PLANIMETRIA VARIAZIONE CATASTALE dopo
QUANTO TEMPO OCCORRE PER VARIARE UNA
PLANIMETRIA
?
Le
tempistiche
sono
variabili
a
seconda
delle
dimensioni
dell’immobile
da
certificare
(appartamento,
palazzo,
capannone,
ecc.).
Per
un
appartamento
di
medie
dimensioni
sito
in
Roma
e
comunque
nella
provincia
di
Roma
,
i
tempi
di
consegna
di
una
variazione catastale sono di circa 5 giorni lavorativi:
per
il
rilievo
e
la
presentazione
e
altrettanti
dopo
la
presentazione.
QUANTO COSTA
A ROMA?
L’onorario
per
l’accatastamento
di
un
appartamento
fino
a
100
mq
nel
comune
di
Roma
e
comunque
nella
Provincia
di
Roma
il
costo è di:
€ 300,00 + iva per le mie competenze ad unità immobiliare
€ 50,00 per i diritti catastali ad unità immobiliare.
QUANTO TEMPO OCCORRE PER VARIARE UNA
PLANIMETRIA
?
Le
tempistiche
sono
variabili
a
seconda
delle
dimensioni
dell’immobile
da
certificare
(appartamento,
palazzo,
capannone,
ecc.).
Per
un
appartamento
di
medie
dimensioni
sito
in
Roma
e
comunque
nella
provincia
di
Roma
,
i
tempi
di
consegna
di
una
variazione catastale sono di circa 5 giorni lavorativi:
per
il
rilievo
e
la
presentazione
e
altrettanti
dopo
la
presentazione.
QUANTO COSTA
A ROMA?
L’onorario
per
l’accatastamento
di
un
appartamento
fino
a
100
mq
nel
comune
di
Roma
e
comunque
nella
Provincia
di
Roma
il
costo è di:
€ 300,00 + iva per le mie competenze ad unità immobiliare
€ 50,00 per i diritti catastali ad unità immobiliare.
Se ti occorre una variazione catastale o una Modifica Planimetria
Catasto Roma e provincia chiamaci allo 06/2158177 – 3476607420
- 3477197054
Sede Legale e Operativa:
Viale Giovanni Battista Valente 31,
Cap 00177 Roma (RM) Italia
Gianfranco Bianchi
P. IVA 11211301004